Location: France
Status: Completed
Year: 2016 - 2019
Type: Residential
My family bought land in South of France’s Vaucluse department in the early 2000s. At the time, a small farmhouse sitting in the forest nearby had been weathering away for more than a decade. It stood on its hill, fading comfortably into the landscape.
When my parents approached me to rebuild it we were sitting within eye-sight of the dilapidated structure. It was still soft in its ruinous state, a reminder of the qualities of its surroundings. We had spoken about the project before but the timing had not been right. That summer, and throughout the two years that followed, I worked to bring it back to life – infusing it with the monastic qualities that make this valley so special.
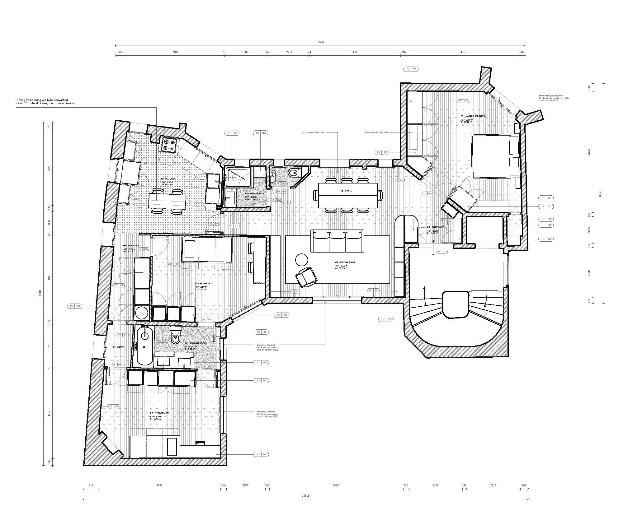
Respectful of its surroundings the house was designed to be an intimate refuge buried in the hills – one that would respect the site and the architectural history of the region. It sits at the base of a small, tree-covered hill in the middle of the French country-side. When summer comes around it progressively nestles itself in the forest, without ever losing views of the vineyard below.
The existing structure was carefully dismembered in phases. The footprint and envelope were revised but stayed very much in keeping with the proportions of the old farmhouse. More than a simple reconstruction, this house was imagined as a renewal, emphasizing the house’s quirks and lending voice to careful craftsmanship. We took cues from surrounding architecture and amplified them. Most walls are finished with “chaux”, a local lime plaster that leaves the surface textured and uneven. The casework was drawn plainly and is almost entirely carved from regionally sourced oak. The tiles on the roof are “tuiles anciennes”, some more than 30 years old, ranging in color from green to red.
Photos: Simone Bossi
Location: London, UK
Status: Completed
Year: 2024
Type: Residential
Liberia Road is a meticulously renovated Victorian terrace house in London, spanning three floors plus a basement.
The entire property has been thoughtfully transformed, featuring bespoke joinery throughout and a striking zellige-tiled fireplace on the ground floor. Every element has been carefully designed to create a cozy and tasteful sanctuary.
The layout underwent a bold reconfiguration, including the creation of a new walk-in dressing room that replaced an old bathroom, which was relocated to an updated 1980s extension. Skylights were added to the first floor to brighten previously dim areas.
The interior exudes subtle elegance, with a warm and nuanced color palette that fosters a serene, sophisticated atmosphere in every room.
Location: London
Status: Completed
Year: 2021
Type: Residential
Cambridge Gate is part of a terrace of Grade II listed buildings overlooking Regent’s Park in London. Studio XM was commissioned for the renovation’s planning application. This included amongst other items, two new structural openings between the living and dining room as well as alterations to the bathrooms and kitchen.
Photos: Jae Whan Kim
Location: London
Status: Completed
Year: 2022
Type: Multi-use
Located in the heart of London’s Fitzrovia, this Georgian townhouse underwent extensive renovation to accommodate a new multi-purpose office.
Originally built in the 1760s and grade II listed in 1989, the building’s historic fabric was compromised on a number of occasions. Outside of the refronting that occurred in the 1950s, the most notable loss was the original internal layout, which, subject to 20th Century office needs, was heavily compartmentalized.
Solving this fragmentation of space was of paramount importance. The clients were clear on their ambitions for the project: celebrate the history of the building while creating open and collaborative spaces.
Modern partitions were removed where possible, offering previously nonexistent perspectives throughout the buildings. Oak-framed glazing was introduced where meeting rooms had to be separated, at least acoustically, from the rest of the operational spaces. The latter were organized around the main staircase, one of the last original features in the building. Put together, these features offer a clearer reading of the building, in addition to providing airy and sun-lit spaces.
A palette of soft-toned finishes help create a homely feel - harkening back to the building’s initial use. The built-in joinery matches the new oak partitions, providing a degree of warmth to the space without compromising on storage. The color of the free-standing office furniture varies depending on the use of the space, creating a continuous yet diverse experience through the building.
Photos: Jae Whan Kim
Location: London
Status: Completed
Year: 2022
Type: Retail
For Buns From Home’s second location we explored ways to experience home away from home. The goal was to create a soft quasi-residential interior to announce the expansion of Notting Hill’s favorite bakery.
The atmospheric qualities of the space are greatly dependent on the finishes utilized. The color palette is varied but coordinated, a mix of soft beiges and whites. Limewash paint was used to finish the walls, ceiling and even the front counter, giving the space a granular and rustic appearance. The floor is a vanilla-colored Marmauleom, a natural alternative to Vinyl.
The layout was a challenge given the space’s narrow and elongated plan. Two working counters of differing depths give enough room to cook the baked goods in the back of the unit. The front counter segments the room in half, giving visitors the chance to see the chef working before they make their choice.
Photos: Jae Whan Kim
Location: London
Status: Completed
Year: 2022
Type: Retail
Buns From Home’s first Central London location is now open in Covent Garden. This new neighborhood encouraged us to consider the context in great detail. In doing so, we developed a design tailored to its surroundings. One that references the early history of the area while celebrating the baked goods.
Before being named Covent Garden, the area was referred to as "the garden of the Abbey and Convent" - a patchwork of farmable land reserved for Westminster Abbey. Today little of that is left, buried under decades of building development that started after the dissolution of the monasteries.
The space today displays the type of restraint that harkens back to that time in history. We focused our attention on the essential, and the existing. The hardwood floor was restored and the client-facing area is dressed with a naturally dyed veneer. The green hue was chosen to establish a clear contrast between the counter and the buns displayed, in addition to referencing their cardamom special, a fan favorite.
Photos: Jae Whan Kim
Location: London
Status: Completed
Year: 2022
Type: Retail
This small retail unit in Sloane Square was a careful balancing act. The volume needed to be efficiently organized without losing the homely intimacy of the bakery’s story and values. Located in a conservation area, it also had to be sensible about its architectural language.
Playing with traditional joinery profiles organized around a central counter, we designed a quasi-residential storefront which bridges the visual gap between the 1960s building in which it is located and the surrounding architecture.
The various window opening systems that animate the façade promote interactions between pedestrians and the business. The large sash window above the counter allows people to browse and order while the stable door pivots open to welcome deliveries and process payments. Above them, a top-hung window facilitates natural ventilation in the unit.
The counter was designed with the same playful efficiency. Used for display and baking inside the unit, it also extends beyond, overhanging slightly above the sidewalk. As a result, the countertop becomes multi-functional: supplying a workable surface for the chefs and providing space outside for cups and elbows.
Photos: Jae Whan Kim
Location: Berlin, Germany
Status: Completed
Year: 2017
Type: Commercial
Satisfy reached out to Studio XM for the design of their first pop up store in Berlin. The running apparel company was looking for a clean and contemporary design to expose and sell their merchandise during the 2017 Berlin Marathon. The pop was open on the last week end of September - where runners were be able to purchase exclusive items.
Location: London, UK
Status: Completed
Year: 2023
Type: Residential
Location: France
Status: In Progress
Year: 2022
Type: Residential
Location: Paris, France
Status: In Progress
Year: 2023
Type: Residential
Location: Ansouis, France
Status: Completed
Year: 2017 - 2019
Type: Landscaping
The two gates are on the same parcel of land as the House of Bees (MA). They frame the North and South entrances.
The first gate, with the opening in the middle, sits at the northern end of the plot. It remains closed most of the time to avoid cars passing through. The aperture allows people to walk around freely.
The second gate, made of timber, is situated at the southern end. The gate was assembled using staggered timber panels, half of which are reduced in height to allow people walking by to enjoy views of the vineyards.
Location: London
Status: Completed
Year: 2023
Type: Retail